Skip to content
Menu
Menu
Calculators
Common Unit Converters
LPG AM3 to KG/SM3/NM3 Conversion
LPG Density, Calorific Value and Piping Diameter Calculator
Natural Gas Density, Calorific Value and Piping Diameter Calculator
Density of various gases
Water Spray System Calculation for LPG LOT Cylinder Bank
Equipment Cost Calculation
Enter
LPG Cylinder Bank – Data Collection
View
LPG Cylinder Bank – View Data Collected
My Account
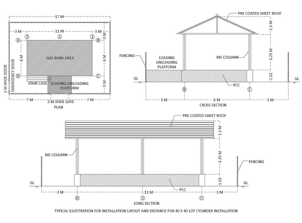
Typical illustration for installation – Layout and distance for 40 X 40 LOT cylinder Installation
View Categories
Home
KB
IS 6044 Part 1:2018